Need a draftsman with more experience
than you can shake a stick at?
40,000+ hours of 3D Design and engineering, all in one place!
From the humble beginnings of a hobbyist exploring SketchUp 2008, to a self taught professional millwork draftsman skilled in SolidWorks 2025, nothing is off the table.
With over 40,000 hours of dedicated 3D design experience and 14 years of professional drafting behind me, I’ve developed an expertise in turning complex ideas into precise,
build-ready models and compelling visual renders. Whether it’s crafting elegant curved reception desks ,detailed millwork assemblies, or custom fabrication projects,
I bring a combination of technical precision, creative problem-solving, and real-world manufacturing knowledge to every project I touch. When it comes to design, nothing is too big to tackle.
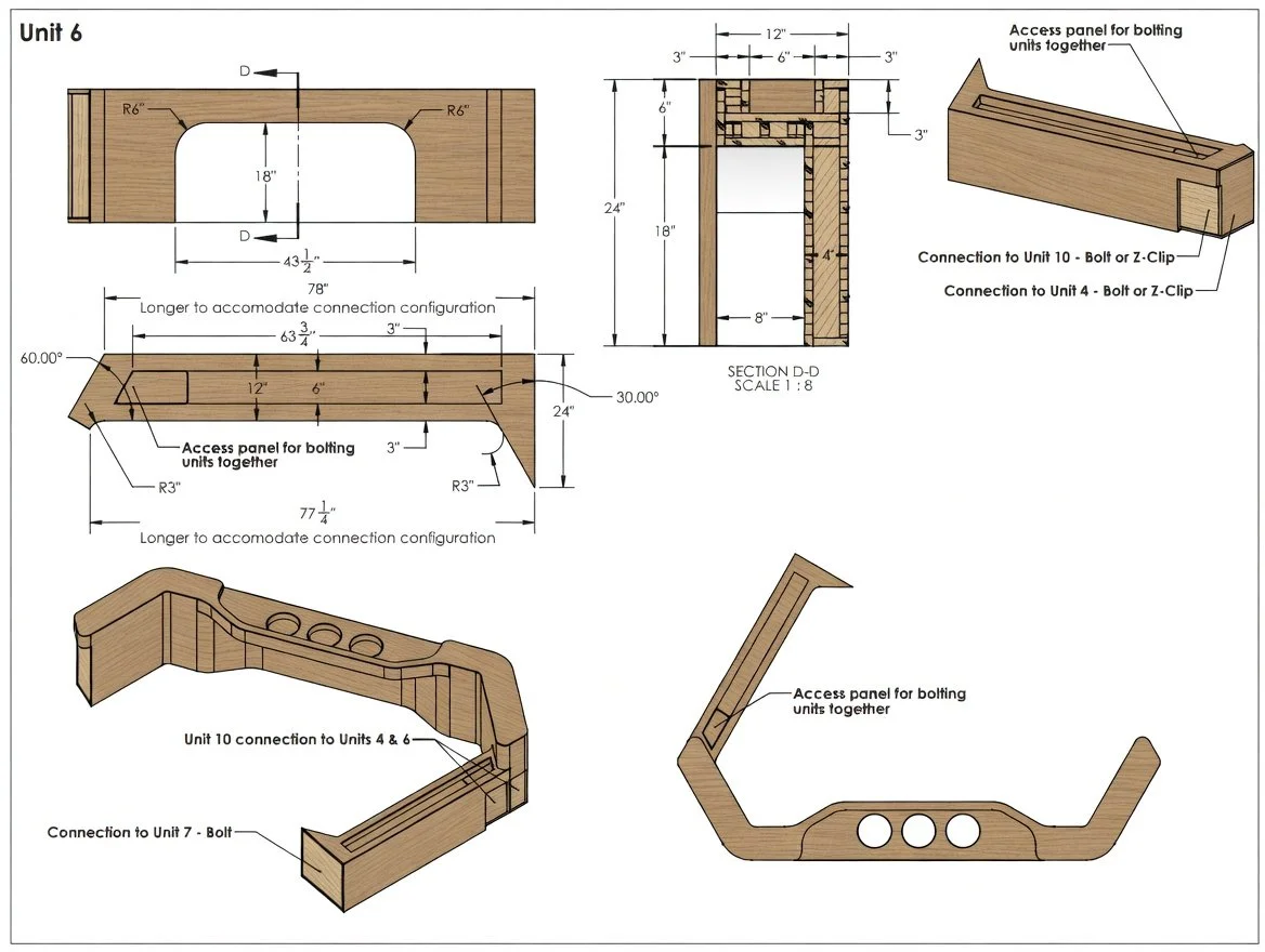
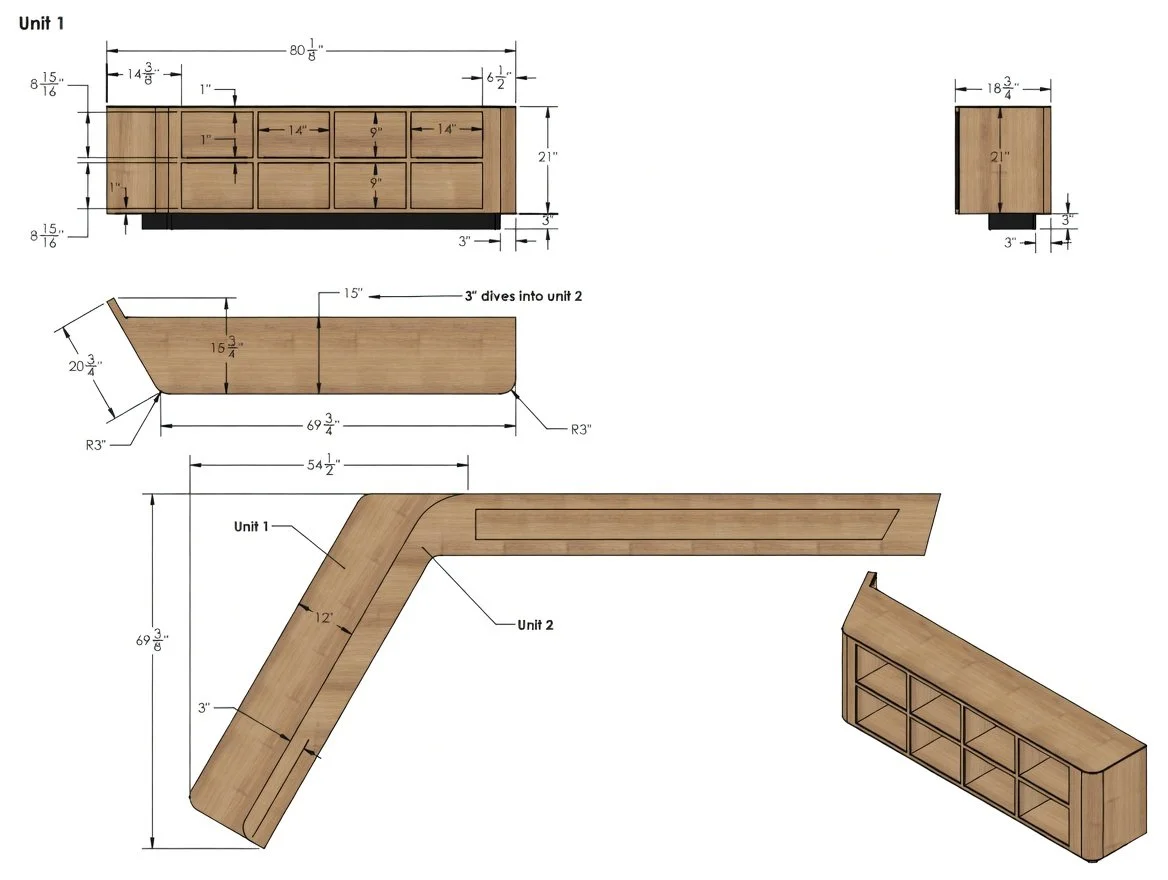
This reception desk was engineered in 2018, relatively early in my professional career as a millwork draftsman.
Since then, my skills and understanding of materials, construction, and engineering have grown significantly.
Experience on display across the country
From OMSI in Portland Oregon, to the Empire State Building in New York City, my fingerprints are everywhere.
Kid Corral for Toddlers and sorta-walkers
If you’ve been to OMSI since 2020, you may have seen the kid corral in the Science Playground. Its a comfortable and exciting place to let your young children play! It features a central fish tank to captivate the their mind as they explore the world around them.
Empire State Building - Official Store
Your Questions,
Answered
How quickly can you deliver a project?
Timelines depend on scope, but most small to medium builders take about 1-2 weeks. Larger projects could be 3-6 weeks.
Do you specialize in any particular industries?
I Specialize in Custom Millwork and general cabinetry, but I can draw just about anything.
What if I’m not satisfied with the first draft?
Every project includes a complimentary revision round. I collaborate closely with you to refine tone, structure, and messaging until the copy feels just right.
Stay in Touch
Ready to see how I can benefit your project or your company? Send me a message!